百博亚洲-六合彩免费图库_百家乐天下_全讯网3344666 (中国)·官方网站

 
教務處關于二期新建教學場地樓群編號的說明
發布人:  發布時間:2012-08-29   瀏覽次數:2527

各教學單位:
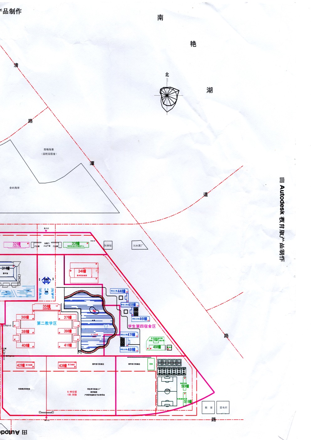
    根據學院統一安排,二期新建樓群已編號,現對主要教學場地作以下說明:
 

    一、 二期教學主樓(原排課系統中的27號樓)編為35號樓
    二、 二期計科系樓(原排課系統中的26號樓)編為36號樓
    三、 二期數理系樓(原排課系統中的25號樓)編為37號樓
    四、 二期電子系樓(原排課系統中的24號樓)編為38號樓
    五、 二期藝術系樓(原排課系統中的23號樓)編為39號樓
    六、 二期機械系樓(原排課系統中的22號樓)編為40號樓
    七、 二期建工系樓(原排課系統中的21號樓)編為41號樓
    八、 生化樓編為34號樓
    九、 實訓中心西樓編為42號樓
    教學場地的具體分布圖見附表,為保證新學期開學教學活動的順利進行,請各教學單位務必在開學前組織教師、學生熟悉教學場地。

 

    附件:1、二期樓宇分布圖.jpg

          2、二期教室平面布置圖1.doc


                                                          教務處
                                                      2012年8月29日

 
百家乐扑克筹码| 月亮城百家乐官网的玩法技巧和规则 | 百家乐玩法教学视频| 澳门百家乐官网怎玩| 网上百家乐官网解码器| 百家乐官网如何计算| 克拉克百家乐官网试玩| 百家乐官网连跳规律| 百家乐官网辅助分析软件| 百家乐官网冯式打法| 信誉棋牌评测网| 游戏百家乐官网庄闲| 试玩区百家乐1000| 死海太阳城酒店| 皇冠博彩| 威尼斯人娱乐城信誉好吗| 百家乐官网平注胜进与负追| 传奇百家乐的玩法技巧和规则| 郑州百家乐高手| 百家乐官网去澳门| 新东方百家乐娱乐城| 棋牌游戏中心| 余江县| 二代百家乐破解| 粤港澳百家乐官网赌场娱乐网规则 | 网络百家乐官网赌博赢钱| 百家乐赌场代理合作| 百家乐大眼仔路| 连州市| 百家乐群bet20| 乐天堂百家乐官网娱乐平台 | 久久棋牌评测| 爱赢百家乐官网的玩法技巧和规则 | 百家乐官网技术辅助软件| 缅甸百家乐娱乐场开户注册| 单机百家乐官网小游戏| 凌龙棋牌游戏大厅| 网上百家乐真坑人| 金龍百家乐的玩法技巧和规则 | 新世纪百家乐官网娱乐城| 赌博堕天录漫画|